WELCOME TO Calder Mews Phase I
Bramham
RESERVED
Plot 5 Is Our HOME OF THE WEEK!
The Bramham is a uniquely designed three-four bedroom family home with an outstanding specification in Greetland, Halifax.
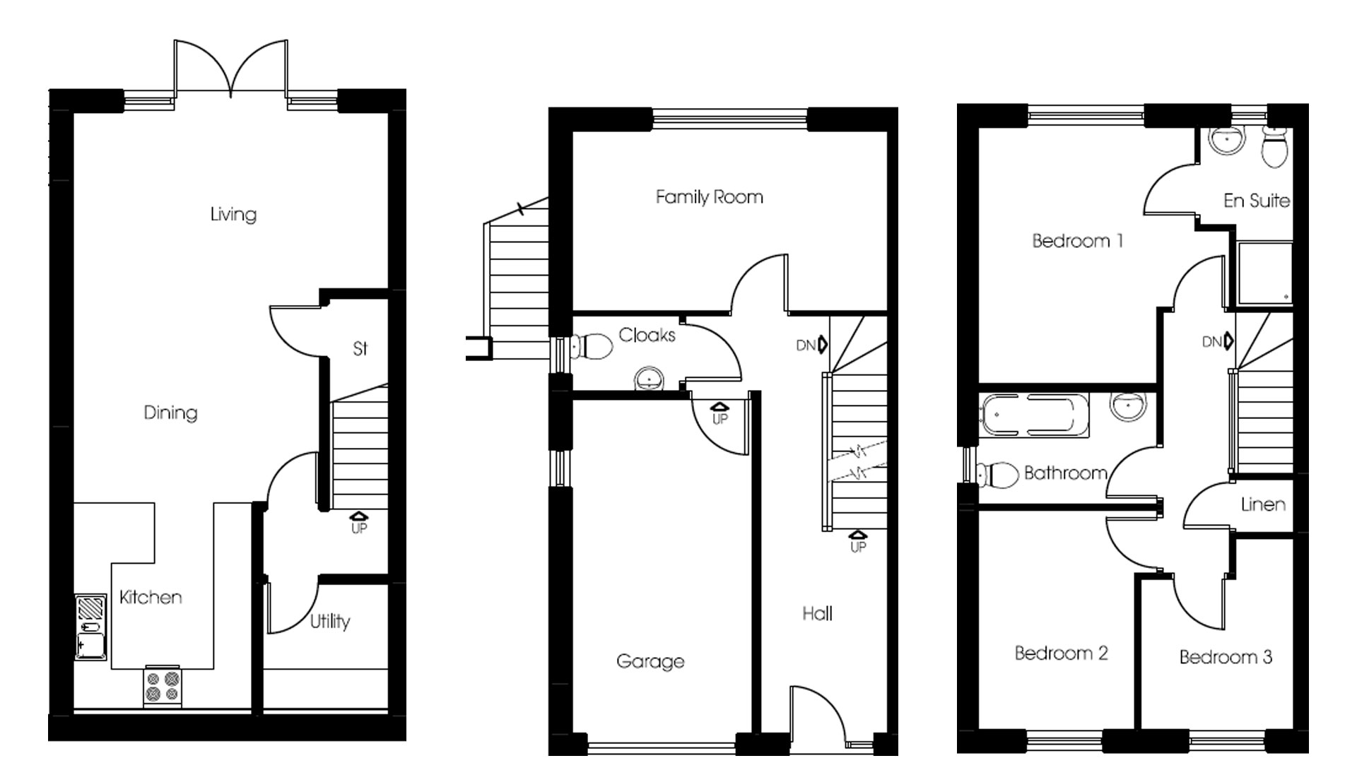
Entering on the upper ground floor, the Bramham’s welcoming hallway leads to an integral garage with internal access, a guest WC and a fourth bedroom/designated spacious family room with a large window overlooking the rear garden.
Downstairs you’ll find an exceptional open plan living and dining area perfect for socialising, featuring a stylish fitted Symphony kitchen with a breakfast bar and high-tech integrated appliances. Sleek French doors lead from the living area to the rear garden, and at the foot of the stairs leading to the upper ground floor you’ll find a handy utility closet with fitted base units and plumbing.
The Bramham’s top floor comprises three unique bedrooms perfect for a growing family; a generous single bedroom, a second double bedroom and an enviable master suite to the rear served by an en-suite bathroom. Along the hallway lies a spacious family bathroom with half-height tiling and an Ideal three-piece suite, and a handy linen closet neatly tucked away beside bedroom three.
The Bramham also features those little cherry-on-top touches that make all the difference, including high-tech energy-efficient appliances, soft-close cabinets, and a heavenly rain-head walk-in shower to the en-suite.
Enquire today.
Property to sell? No problem! Ask our friendly sales team for more information about our Smart Move and Part Exchange schemes!
3 Bedrooms
2 Bathrooms
Garage
Kitchen
- Symphony kitchen with soft-close cabinets and drawers
- Integrated oven, fridge freezer and dishwasher
- 40mm worktop with upstand
- Gas hob and cooker hood
- Stainless steel 1.5 bowl sink with mixer tap
- Contemporary under-cabinet downlights
- USB socket
Utility
- Fitted base units
- 40mm worktop with upstand
- Plumbing for washer/dryer
Bathroom
- Ideal Standard three-piece bathroom suite
- Polished chrome heated towel rail
- Vanity unit
- Polished chrome downlights
- Half-height wall tiling
En-suite
- Ideal Standard three-piece bathroom suite
- Polished chrome heated towel rail
- Rain-head shower with low-profile shower tray
- Vanity unit
- Polished chrome downlights
- Full-height wall tiling to shower area
- Shaver/charger socket
W/C
- Sophisticated Ideal Standard two-piece suite
- Stylish semi-pedestal basin
- Polished chrome downlights
Internal Features
- Stylish white panelled designer doors
- White emulsion to walls and ceiling
- Gloss to woodwork
- Polished chrome sockets to hall, kitchen, and lounge
- White sockets to remainder of home
- High-efficiency combi boiler
- Stelrad radiators with TRV controls
- TV points and telecoms connections to three points
- Cable in loft for potential aerial point
- Wired smoke alarms with battery backup
- Wired security alarm, PIR sensors to downstairs
- USB socket to master bedroom
External Features
- Intelligent and highly efficient double glazing
- Anthracite colour window frames, white on inside
- Black front door with chrome letterplate
- French doors to rear
- Low-maintenance soffits and fascias
- Turf/soft landscaping to front garden
- External light to porch and rear
- Patio to rear
- External tap to rear
- External socket to rear
- Integral garage with socket
- Driveway
BOOK A VIEWING
VIEW SITE LAYOUT WHAT'S MY BUDGET? WHAT'S MY HOME WORTH?
FLOORPLAN
Lower Ground Floor
| Kitchen | 2750mm x 3200mm | 9’0″ x 10’5″ |
| Dining | 3750mm x 3200mm | 12’3″ x 10’5″ |
| Living | 4800mm x 2700mm | 15’8″ x 8’10” |
| Utility | 1950mm x 2000mm | 6’4″ x 6’6″ |
Upper Ground Floor
| Garage | 2730mm x 5040mm | 8’11” x 16’6″ |
| Cloaks | 1640mm x 1120mm | 5’4″ x 3’8″ |
| Family | 4800mm x 2720mm | 15’8″ x 8’11” |
First Floor
| Bedroom 1 | 3280mm x 3880mm | 10’9″ x 12’8″ |
| En-suite | 1430mm x 2720mm | 4’8″ x 8’11” |
| Bedroom 2 | 2370mm x 3310mm | 7’9″ x 10’10” |
| Bedroom 3 | 2330mm x 2280mm | 7’7″ x 7’5″ |
| Bathroom | 2710mm x 1690mm | 8’10” x 5’6″ |
RESERVE YOUR NEW HOME
SELECT YOUR PLOT FROM THE LIST BELOW.
PLOT
HOUSE TYPE
PRICE
ANTICIPATED MOVING DATE
